(EN)Core

Squamish Multiplex Design Competition (Third Place)
Category 2: Elevated Dwelling

(EN)Core derives its design philosophy from larger-scale commercial construction, where efficiency and flexibility are paramount. Each unit centres around a semi-prefab vertical service core, containing all the necessary mechanical equipment and fixtures for a high-performance, functional dwelling. Centralizing these modular systems ensures that they can be built efficiently and affordably, leaving more time, space and money for occupants to personalize their homes, now and in the future.

  • With all the essentials neatly organized and packaged in the core, the rest of the home can take shape around the occupants’ needs rather than those of the machines. The core establishes a practical division of space: providing access to support functions, such as bathrooms and laundry, without negatively impacting primary living spaces with unwanted adjacencies.

    Spaces can be reconfigured with ease thanks to non-loadbearing walls, free of mechanical services. Walls can be moved and spaces reshaped to support the occupants’ changing needs and desires. The siting of the building and articulation of the units is designed to enhance access to light and air while contending with tight constraints from side setbacks.

    Recessed balconies allow for more windows without adversely impacting limiting distance considerations. Rotating the units provides the opportunity for long views and increased privacy by creating an oblique relationship with neighbouring buildings. This remains true regardless of future developments nearby.

    Four distinct gabled volumes define the building, providing clear visual distinction for each unit and reducing the perceived mass of the building. Each gable encloses a unit’s primary living spaces, while nooks created between them offer room for supporting functions and sheltered balconies. Minimal, platonic forms avoid overly complex and visually cluttered façades, and increase construction efficiency and energy performance.

    A reduced material palette of concrete, fiber cement and metal is straightforward and robust. Increasingly, these hard-wearing and fire-resistant materials are part of the local vernacular and speak to a distinctly Pacific North West architectural style. Concrete foundations and fin walls ensure flood hazard resilience while neatly dividing exterior spaces into private gardens. Fiber cement provides an understated and cost-effective solution for the supporting volumes, while standing-seam and mini-reveal metal panels clad the projecting gables with texture and colour.

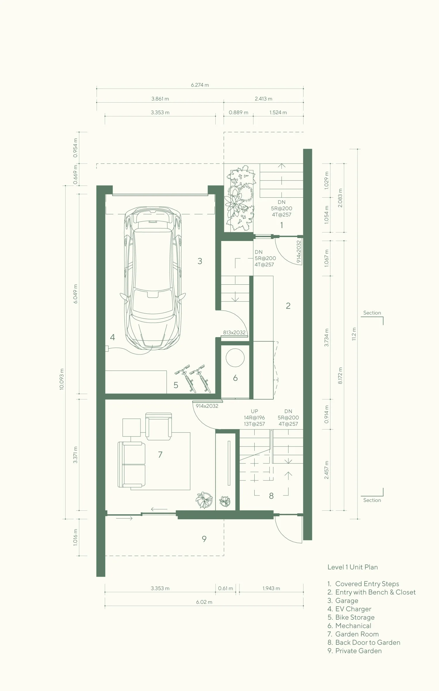
    The first floor’s split-level design is an adaptation of the elevated dwelling that enables practical access at grade while still providing living space above the flood construction level. The concrete floor ensures maximum resilience in case of flooding, and provides an extremely durable and hard-wearing foyer for Squamish adventurers and their required gear.

    Depending on the needs of the people living in the home, the ground floor living space can be easily removed to expand the garage without needing to modify the building’s structure or mechanical systems.

    Omitting the living space would also permit the design to be implemented with higher flood construction levels, such as is required in downtown or Brackendale, without much difficulty. On lots without a flood hazard, the split level could be reduced or eliminated, creating further construction cost savings.

    (EN)Core prioritizes unencumbered, flexible livable space, supported by highly efficient amenities. The design understands that more amenities is not always better for the needs of the inhabitants.

    Space is always at a premium. Even a seemingly generous three-bedroom house can become a one-bedroom house if the residents are part of the ever-expanding cohort of fully remote workers. There’s always a need for sanctuary and the ability to define a variety of discrete spaces in a home, like an office or child’s play area. By centralizing the core, a variety of rooms and zones can be easily configured to make the best use of the available space and provide convenient access to the various spaces contained within the core.

    The tradeoff of this system is a lower bathroom count. But occupants gain more living space; better flexibility and adaptability of that living space; and the cost savings associated with not having to build multiple bathrooms and co-ordinate the decentralized plumbing.

    Special consideration has been given to the design and layout of core components. Both the kitchen and full bathroom are adaptable dwelling ready. The inherent flexibility of the building system means that increased accessibility requirements can be met without needing to modify any of the building systems.

    Space can be redefined through the simple reconfiguration of service-free, non-load-bearing interior partitions and demountable building components, such as the storage closets, which provide a 1.5m deep by 1.9m wide stair landing when removed. The front porch is sized so that the planter box could be replaced with a vertical lift platform and the internal stair can accommodate a stair lift.